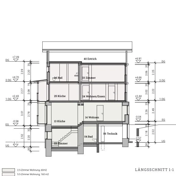
Im Kaplaneihaus entstehen eine 5.5-Zimmer- und eine 2.5-Zimmer-Maisonette-Wohnung. Die beiden Wohnungen in Stalden können als Erst- oder als Zweitwohnsitz genutzt werden. Gerne erteilen wir weitere Auskünfte.